Create Your First Project
Start adding your projects to your portfolio. Click on "Manage Projects" to get started
.UWE
Project Type: Higher Education
Client: University of the West of England (via Elevate Spaces)
Role: Interior Designer, CGI Specialist, FF&E Specification
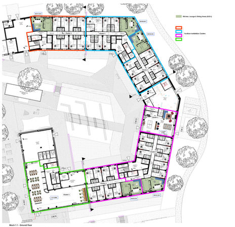
Student Accommodation 3 at the University of the West of England comprises three purpose-built residential blocks arranged over five storeys, delivering a mix of en-suite student bedrooms organised in cluster layouts with shared kitchen, dining, and communal spaces.
My role focused on interior development and delivery, including FF&E specification across bedrooms and communal areas. Material, fabric, and finish selections were developed to balance durability, comfort, and visual coherence within a high-use student environment.
CGI visualisations were produced for key communal spaces to support design development and stakeholder approvals, alongside space planning and installation drawings to aid coordination, procurement, and on-site implementation.


























